为更好的服务师生,提升学生活动中心的整体品质,竞技宝app下载官网计划在学生活动中心二楼阅读吧内设置咖啡吧,现公开招募公司运营,现将有关事宜公告如下:
一、学生活动中心咖啡吧项目概况
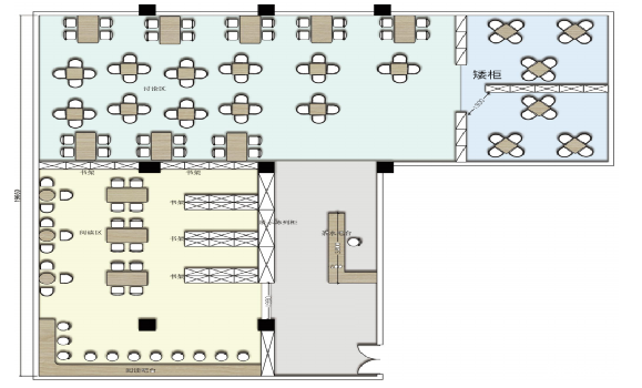
学生活动中心咖啡吧地址在竞技宝app下载官网学生活动中心二楼阅读吧,建筑面积298.7㎡,具体布局见示意图。校方提供已装修场地(运营方可根据需要自行进行补充装修),相关经营证件自行办理,水电费用自理,另经营所需的基本设施和设备、安全设备、营业设备、保洁设备均由运营方自行配置。

图一:学生活动二楼阅读吧布局示意图
二、资格条件
1.必须是具有法人资格的企业、独立注册的个体工商户,具有合法经营资格,并已在当地工商部门办理注册登记。
2.商户在过去三年内没有被列入严重违法企业名单并且过去三年内的企业经营情况良好,无重大违法记录。
3.商户要求至少拥有一家咖啡馆或类似水吧的运营经验,或有同类连锁品牌经营经验。
三、报名时需提交资料
1.商户基本情况介绍(包括企业营业执照、食品经营许可证等)。
2.项目运营管理方案,包括整个咖啡吧的规划设计和装修方案等。
四、咖啡吧基本要求
1.经营范围:咖啡、冷热饮。
2.经营方式:商户应秉承为师生提供更好的服务为宗旨,经营的产品应比市场提供的产品优惠10%-20%。
3.运营现场:商户对咖啡吧负责管理,合同期内对于学校原有资产出现损坏、丢失等情况,运营方负责维修或赔偿。装修风格需与阅读吧整体氛围一致,确保咖啡吧环境整洁、安静、舒适。装修时需与学校后勤处对接,安装独立水表及电表。
4.开放时间:与学生活动中心开放时间一致(早上8点——晚上10点)。
五、期限和费用
1.服务期限:本次服务期限为3年,期满后重新进行招商工作,原商户有优先合同续签权力。
2.费用:经营期间按每月15/平米的标准上交管理费,每年按8个月计算,经营过程中所产生的水电费用由商户承担。
六、合同终止和违约处理
1.合同终止:合同期满后,自然终止。合同期内若商户因自身原因不愿继续经营的,提出申请经校方同意后无条件退出。
2.违约处理:商家不得从事约定范围之外的经营服务,或提供“三无产品”,如有发现学校有权提前解除合同。
七、联系方式
联系人:胡颖
电话:15580810271
可预约来校现场考察(周一至周五上班时间)
报名截止时间为7月26日
官方微信
官方手机站
码上接单接诉即办